- EN 2-5
- EN 5-7
- B
- G
309,55 €
Основные характеристики:
- Кулачковый механизм доводчика обеспечивает исключительное легкость и удобство при открывании двери. Благодаря такой технологии усилие открывания двери моментально снижается. Это удобство при открывании по достоинству смогут оценить дети и старшее поколение населения.
- Функция задержки закрывания делает двери комфортными в использовании для людей с багажом или громоздкими предметами, людей с ограниченными физическими возможностями, матерей с колясками, для персонала с тележками или каталками. Благодаря встроенной функции доводчика будет достаточно дополнительного времени, чтобы комфортно пройти через дверь.
- Функция ветровой тормоз обеспечивает безопасное замедление и ограничение движения двери, распахнутой или резко открываемой из-за порыва ветра. Это эффективно снижает опасность повреждения двери или близлежащей стены и положительно сказывается на продолжительности службы дверной техники.
- Универсальность: 2 корпуса исполнения для стандартных дверей EN 2-5 и очень тяжелых дверей EN 5-7. Подходит для установки со стороны петель и обратно стороне петель (см. монтажную инструкцию).
- Эстетика большой выбор цветовых решений для подчеркивания дизайна вашего интерьера или экстерьера.
- Система TS 93 включает в себя монтажные пластины, координаторы для последовательного закрывания створок, скользящие каналы с функцией электромагнитной фиксации положения или со встроенным датчиком дыма. Наличие дополнительных компонентов помогает закрывать все требования, предъявляемые к дверям.
Гарантия производителя 2 года.
В комплект поставки не входит скользящий канал. Приобретается отдельно: артикул 640100хх
Обеспечьте своим дверям комфорт с доводчиком TS 93!
| Характеристики и особенности |
|
|||
|---|---|---|---|---|
| Регулируемое усилие закрытия двери | Размер пружины |
|
|
|
| Стандартные двери(2) |
≤ 1250 мм ≤ 1600 мм |
– |
– |
|
| Наружные двери, открывающиеся наружу(2) |
≤ 1250 мм ≤ 1600 мм |
– |
– |
|
| Для противопожарных и дымозащитных дверей(2) |
≤ 1250 мм ≤ 1600 мм |
– |
– |
|
| Универсальный (для дверей левого и правого открывания) | ||||
| Тип рычага | Стандартный | – | – | |
| Скользящий канал | ||||
| Регулировка усилия закрывания винтом | ||||
| Регулировка скорости закрывания клапаном | ||||
| Скорость запирания регулируется | рычагом | – | – | |
| клапаном | ||||
| Ветровой тормоз (BC/OD) | регулируемый | – | – | |
| клапаном | ||||
| Фиксация открытого положения | ||||
| Масса, кг | 3,5 | 5,2 | ||
| Габаритные размеры, мм | Длина (L) | 275 | 285 | |
| Общая глубина (B) | 53 | 62 | ||
| Высота (H) | 60 | 71 | ||
| Доводчики прошли испытания на соответствие EN 1154 | ||||
| Устройства фиксации открытого положения испытаны согласно EN 1155 | ||||
| Координаторы закрывания створок прошли испытания на соответствие EN 1158 | ||||
| Знак СE для строительных изделий | ||||
| DIN SPEC 1104 / CEN TR 15894 | ||||
|
Экологическая декларация продукции в соответствии со стандартом ISO 14025 Владелец программы: Institute Construction and Environment e.V. Номер декларации: EPD-DOR-2013121-E |
||||
| Да / – Нет / Дополнительная опция | ||||
- B = стандартная модель для монтажа на дверное полотно (тяговая сторона), либо на дверную коробку (сторона толкания)
G = специальная модель для монтажа на дверное полотно (сторона толкания), либо на дверную коробку (тяговая сторона). - Для особо тяжелых или широких дверей или дверей, подверженных действию резких порывов ветра, рекомендуется использовать больший типоразмер доводчика или большее усилие закрывания.
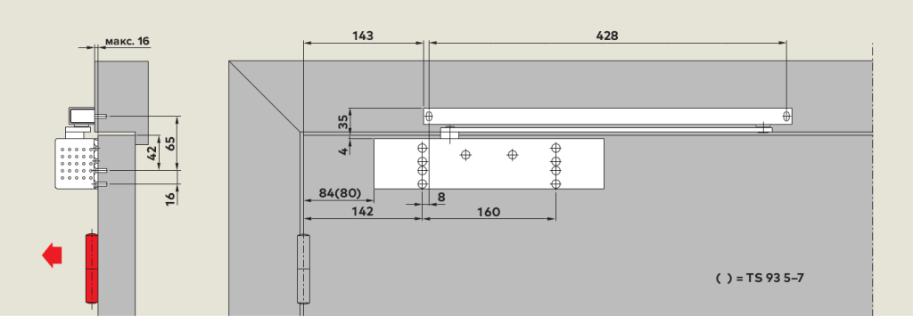
TS 93 B: Монтаж на дверное полотно со стороны петель
Монтаж на дверное полотно (стандартный вариант монтажа) TS 93 В со стороны петель. При соответствующих параметрах для такого способа монтажа допустимый угол открывания составляет 180°. Необходимо убедиться, что доводчик не ударяется об стену.
TS 93 B: Монтаж на дверную коробку со стороны, противоположной петлям
Монтаж на дверную коробку TS 93 В со стороны, противоположной петлям. При таком способе монтажа ветровой тормоз и задержка закрывания не работают. В зависимости от конструктивных условий допустимый угол открывания двери составляет от 120° до 145°. С целью предотвращения повреждения стены и двери рекомендуется установить дверной стопор, чтобы ограничить максимальный угол открывания двери.
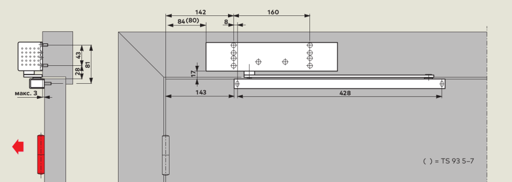
TS 93 G: Монтаж на дверное полотно со стороны петель
Монтаж на дверную коробку TS 93 G со стороны петель. При соответствующих параметрах двери для такого способа монтажа допустимый угол открывания составляет 180°.
TS 93 G: Монтаж на дверную коробку со стороны, противоположной петлям
Монтаж на дверное полотно TS 93 G со стороны, противоположной петлям. В зависимости от конструктивных условий допустимый угол открывания двери составляет от 120° до 145°. С целью предотвращения повреждения стены и двери рекомендуется установить дверной стопор, чтобы ограничить максимальный угол открывания двери.

